Echo Lake House

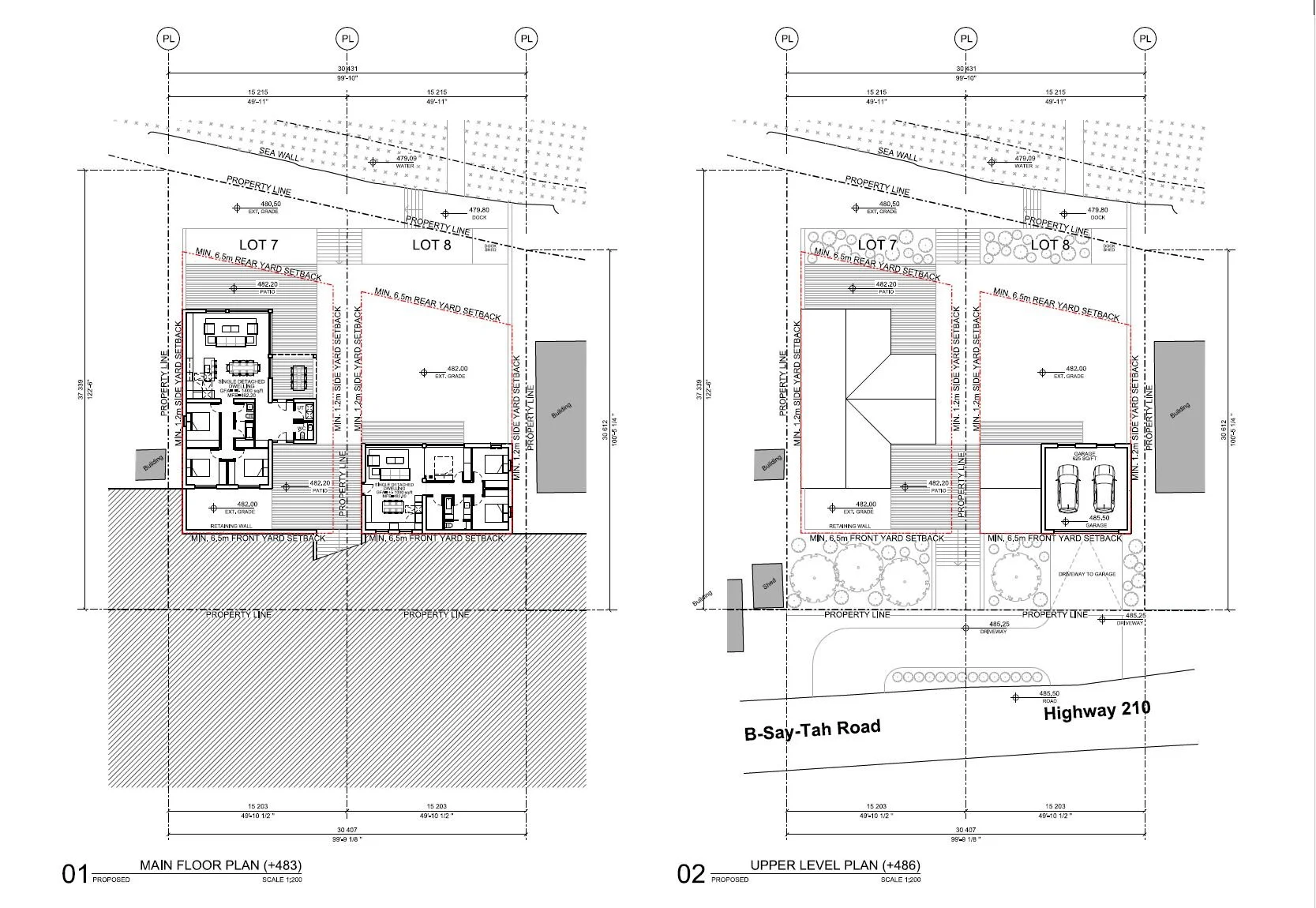
Echo Lake House is located in B-Say-Tah, Saskatchewan. Schofield Architecture was commissioned to design two complimentary lake front houses that work with the site topography to maximize usable area.

The design connects the houses, lake and access road through a series of tiers. This approach utilises the landscape and creates spectacular views of the lake.

Client: Private

Location: B-Say-Tah, Saskatchewan.

Project Type: Residential

Scope: 3,500 sq ft.

Status: Development Permit

Previous
Previous

Fulham House

Next
Next

Lois Creek